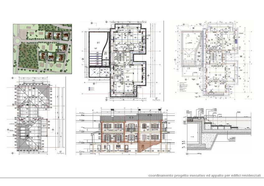
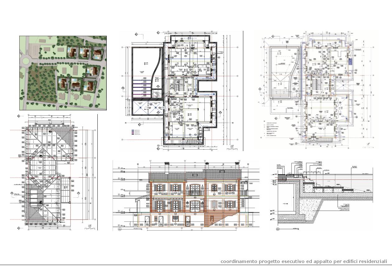
Published novembre 6, 2012 at 1260 × 891 in Progetto esecutivo per edifici residenziali unifamiliari con piscina.