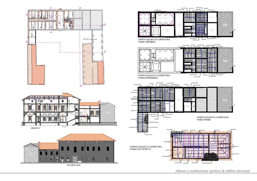
Published novembre 6, 2012 at 1260 × 891 in Rilievo di edificio storico finalizzato alla redazione di progetto di restauro conservativo e riuso.